Home
Priests
Photo Gallery
Mission Centers
Support Us
Contact Us
 
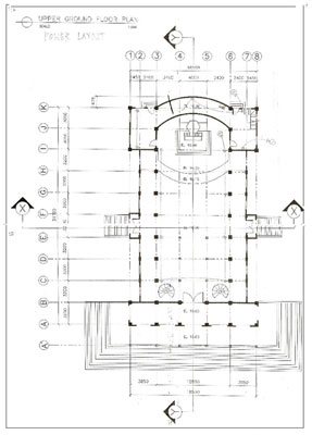
The New Church

Floor plan of the future church.

<<   

  >>

 

St. Bernard Novitiate

Purok 7, Brgy. Daga, Santa Barbara, Iloilo City,

Philippines 5002

Tel: (63)(033) 3965402

Fr. Coenraad Daniels (Prior)